Taibon Agordino - casa a schiera
Rif. 1114TAI
€ 51 000
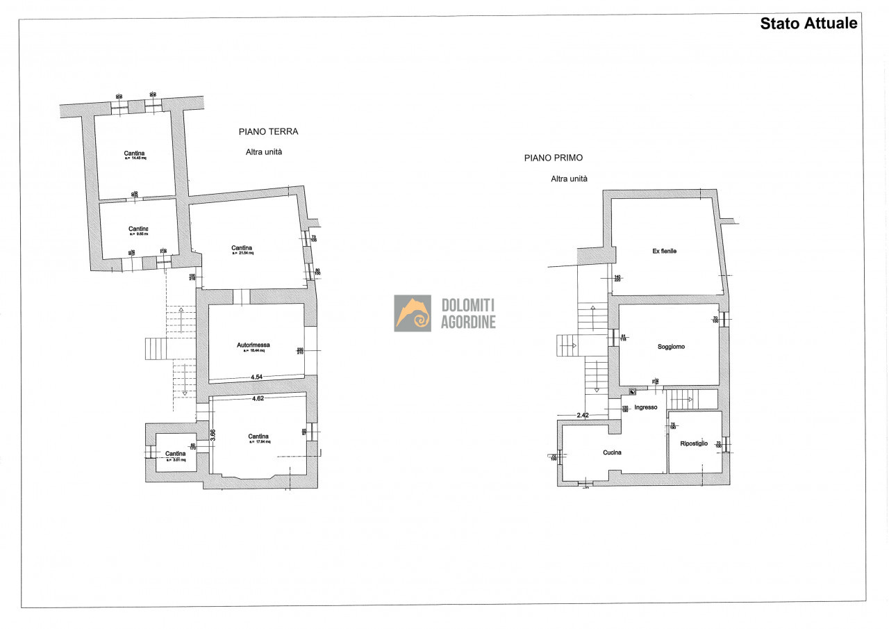
Indirizzo : Taibon Agordino In Taibon Agordino nei pressi del vecchio municipio l' Agenzia Dolomiti Agordine propone in vendita ampia abitazione da terra a tetto, da ristrutturare. Al piano terreno oltre le cantine è possibile ricavare due ampie autorimesse mentre ai piani superiori si possono ricavare due appartamenti di discrete dimensioni ed indipendenti. Il luogo e la struttura si prestano anche per la ristrutturazione ai fini di reddito, il mercato delle locazioni è molto vivace in zona sia per la vicinanza con le attività produttive di Agordo e Taibon ma anche per l'attività ricettiva turistica. Non passa giorno che l'agenzia non riceva richieste di alloggi per affitto. Meravigliosa opportunità di rinnovare una abitazione antica di paese con struttura in pietra locale e legno. Per maggiori info e visite contattaci direttamente al 3494663199.
Dettagli :
| Condizioni della proprieta' | da ristrutturare |
|---|---|
| Spazio abitabile | 139 m² |
| Piano | 4 |
| Numero di piani | 4 |
Comfort :
Geolocalizzazione :
Classe energetica :
G
280.32 kWh/m2anno
